Et juste là, un petit géranium -
37 logements et un habitat partagé sénior



Concours - Projet de 37 logements
UN Quartier résidentiel mixte et apaisé
Lieu : qUISSAC (30, France)
MOA : FONCIERE OLEA
- M² - CONCOURS
Le projet « Et juste là, un petit géranium » se compose de deux entités distinctes et complémentaires :
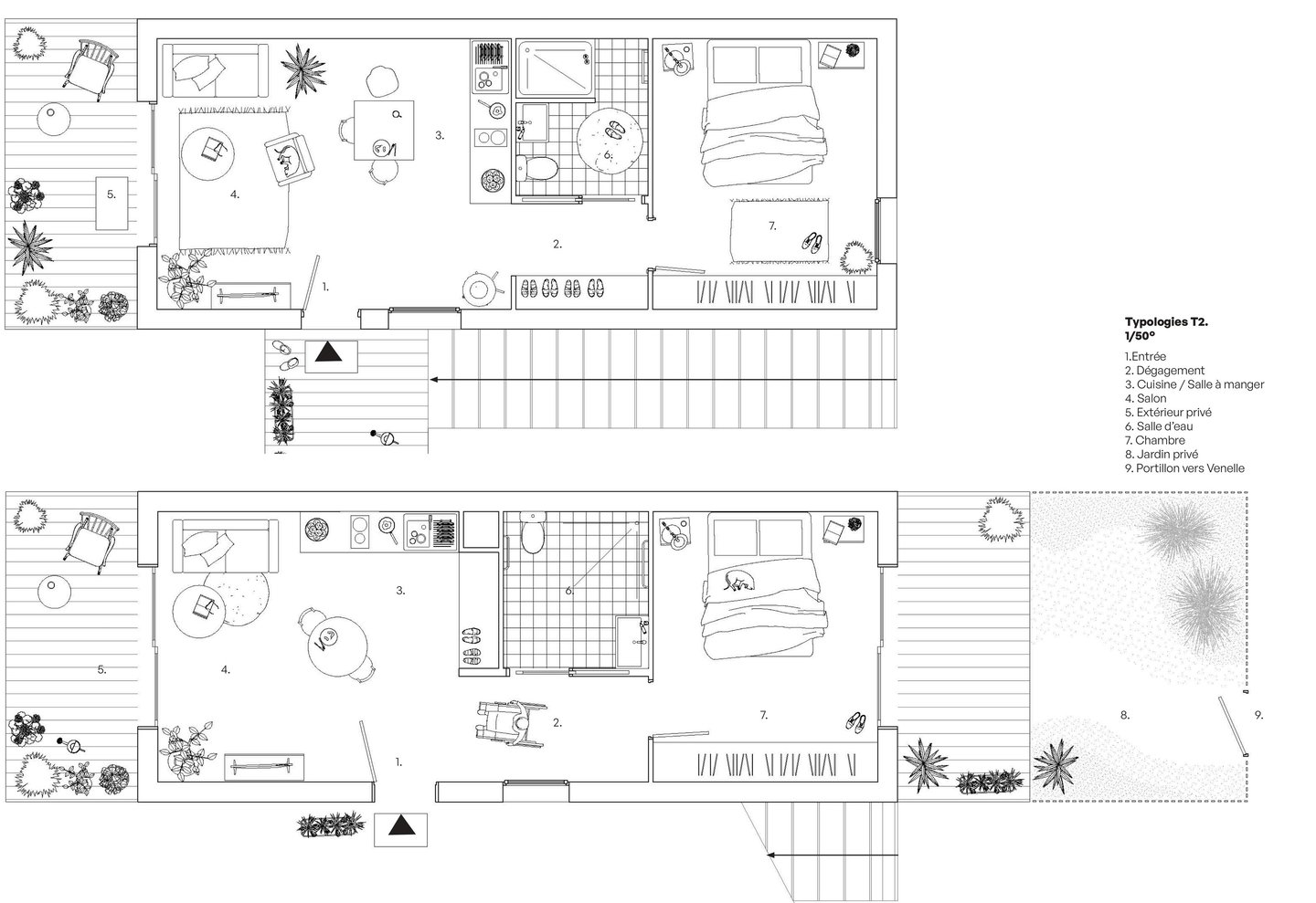
– Une résidence participative de 12 logements T2, conçue spécifiquement pour des personnes âgées autonomes ;
– Un collectif de 25 logements classiques, proposant une diversité de typologies (du T2 au T4), dans une logique affirmée de mixité sociale et intergénérationnelle.
L’îlot se structure autour d’un espace central apaisé et partagé, traité comme une cour vivante, support d’usages communs et lieu de respiration.
La disposition en peigne des bâtiments optimise la multi-orientation des logements et favorise la triple exposition dans une recherche de qualité bioclimatique et de confort thermique passif.
Parti architectural & qualité d’usage
L’accès aux logements se fait via des coursives extérieures en bois, généreusement dimensionnées, qui assurent non seulement la distribution, mais aussi des espaces d’appropriation collective.
Ces coursives participent pleinement de l’identité méridionale du projet, favorisent les échanges informels, et créent un véritable lien d’usage entre l’intime et le collectif.
Les logements sont pensés pour offrir autonomie, lumière naturelle et lien au végétal :
• Les 12 T2 de la résidence participative sont adaptés PMR, avec un agencement optimisé pour le confort des personnes âgées.
• Les 25 logements du collectif répondent à une diversité de besoins résidentiels, dans une logique de mixité intergénérationnelle, tout en préservant les espaces personnels grâce à un travail fin sur les transitions (jardins privatifs, loggias, filtres végétalisés).




Le projet se veut ancré dans son territoire, tant par son vocabulaire architectural que par son fonctionnement.
L’échelle des constructions, la densité maîtrisée, la préservation des arbres existants, et les usages proposés (poulailler, potager, serre, salle commune…) permettent une intégration harmonieuse dans le tissu villageois et une lecture naturelle de la transition entre habitat groupé et cœur de bourg.
Enfin, “Et là, un petit géranium” assume son nom avec légèreté et poésie : un clin d’œil à la vie quotidienne, aux fenêtres habitées, aux petits gestes simples qui font communauté.








